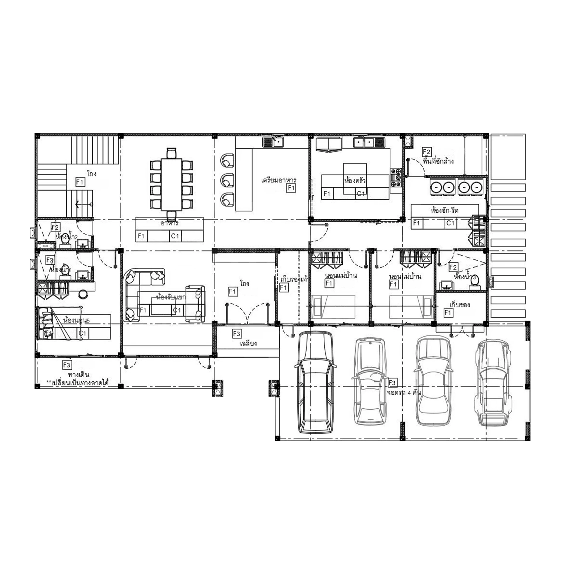
First Floor Plan
Second Floor Plan
House Detail
พื้นที่ใช้สอย : 624 ตารางเมตร
ขนาดอาคาร : กว้าง 21.50 เมตร X ลึก 14.50 เมตร
ฟังก์ชันการใช้งาน : 5 ห้องนอน 6 ห้องน้ำ 2 ห้องครัว
1 ห้องรับแขก 1 ห้องรับประทานอาหาร 1 ห้องนั่งเล่น
1 ห้องพระ 1 ห้องซักล้าง 2 ห้องเก็บของ
2 ห้องนอนแม่บ้าน 4 ที่จอดรถ






