First Floor Plan
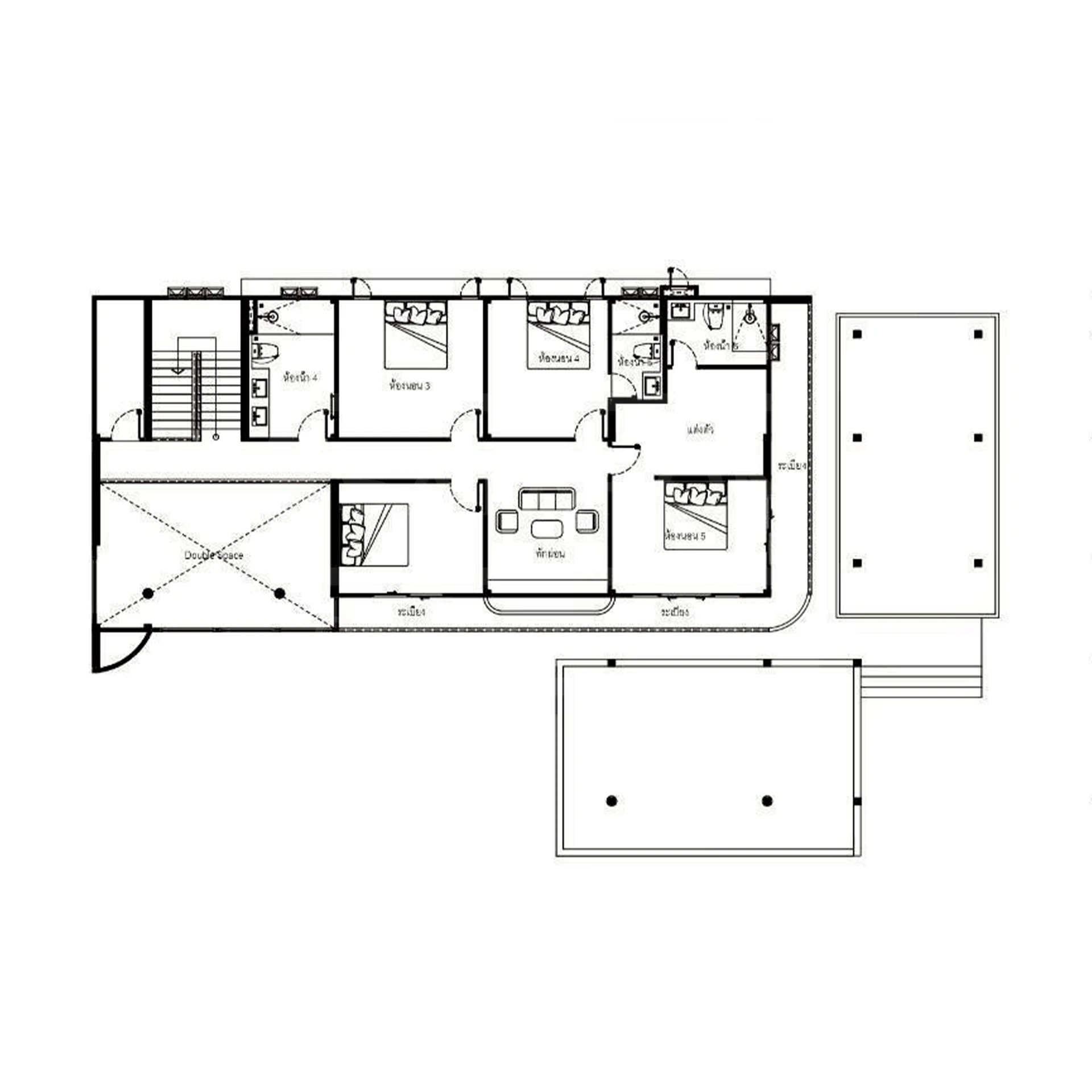
Second Floor Plan
House Detail
พื้นที่ใช้สอย : 562 ตารางเมตร
ขนาดอาคาร : กว้าง 19.40 เมตร X ลึก 14.50 เมตร
ฟังก์ชันการใช้งาน : 5 ห้องนอน 6 ห้องน้ำ 1 ห้องครัว
1 ห้องรับแขก 1 ห้องรับประทานอาหาร 2 ห้องนั่งเล่น
1 ห้องทำงาน 1 ห้องซักล้าง 1 ห้องนอนแม่บ้าน 3 ที่จอดรถ








